Будівництво каміна «під ключ» з використанням чавунної камінної топки та димоходом з нержавіючої сталі у Харкові.
Клієнт звернувся до нас на етапі будівництва даху будинку. Коробка будинку була вже готова із комбінації газобетону та цегли. Нам було надано архітектурний проект.
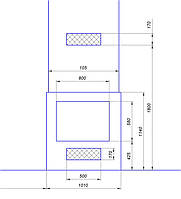
Клієнт зупинився на чавунній камінній топці французького виробника Chazelles, модель HP 800. Детально розглянути топку можна тут.
За результатом виїзду надали кошторис на комплекс робіт із будівництва каміна без оздоблення. Плановий кошторис склав 99150 грн.
Роботи проводились у 3 етапи:
- Будівництво димоходу;
- Установка топки із термоізоляційним куполом;
- Чистове оздоблення мармуром;
Монтаж димаря був виконаний одночасно з будівництвом даху. Основну частину димоходу було встановлено до монтажу покрівлі. Встановлення закінчення димоходу та герметизація проведено після монтажу покрівельного матеріалу.
Установка топки та будівництво термоізоляційного купола здійснювалося після проведення штукатурних робіт та заливання підлоги. Тимчасовий розрив становив близько 4 місяців.
Для підключення топки до димаря довелося виготовляти додаткові елементи димоходу. Це спричинило додаткові витрати на суму 4000 грн.
Дизайнер замовника закінчив розробку дизайну інтер'єру. Відповідно до наданого проекту було внесено незначні зміни геометрії каміна та додано відведення теплого повітря до сусідньої кімнати. Почали будівництво після погодження додаткових витрат.
Остаточний кошторис після перерахунку фактичних витрат матеріалів та змін у конструкції каміна (2021р).
| № | Наименование | Ед.изм. | Цена, грн | Сумма грн |
|---|---|---|---|---|
| 1 | Камінна топка | шт | 41850 | 41850 |
| 2 | Матеріали по димоходу | комплекс | 17450 | 17450 |
| 3 | Матеріали облаштування каміна | комплекс | 15150 | 15150 |
| 4 | Монтаж димоходу | комплекс | 7500 | 7500 |
| 5 | Монтаж каміна (чорновий купол) | комплекс | 20000 | 20000 |
| 6 | Разом за специфікацією | комплекс | 101950 | 101950 |
Реализованный проект выполняет декоративно-отопительную функцию. Использованная каминная топка позволяет обогреть помещение 120 – 150 м2 (при наружных температурах до -15⸰С).Для отделки камина использовали натуральный мрамор турецкого происхождения «Royal white».







